X
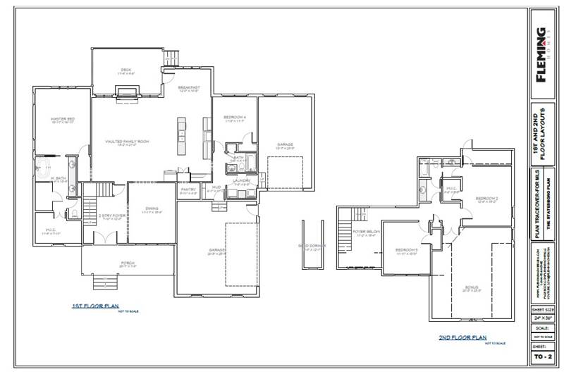
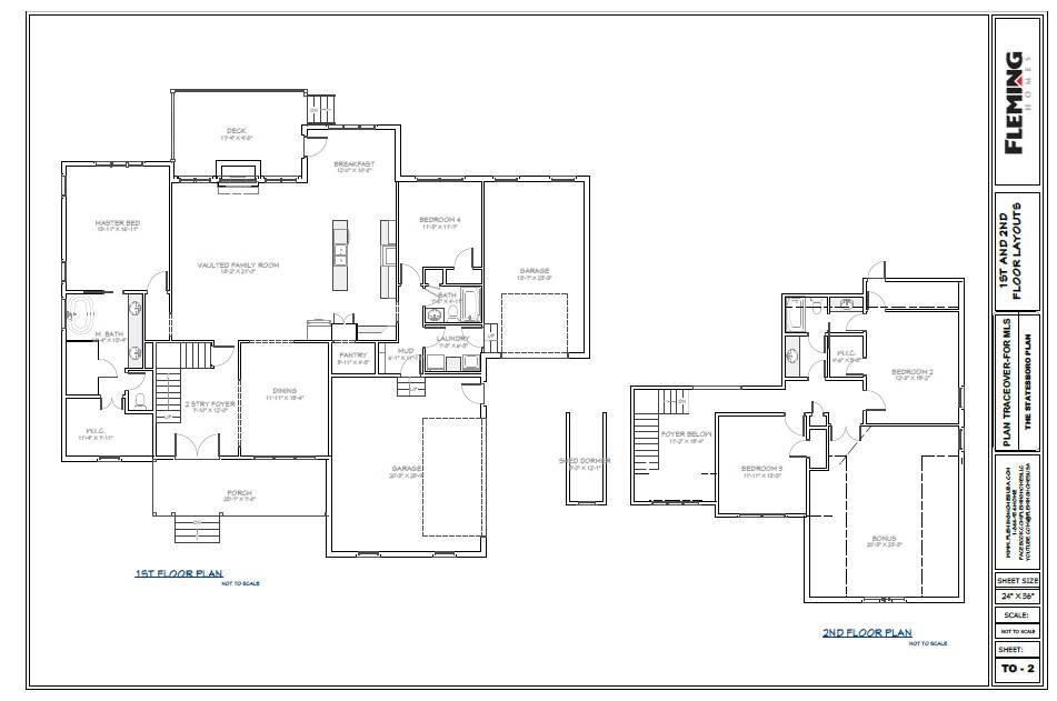
3000 square feet \\ 4  bedrooms \\ 3.0 bathrooms

Want more information?

If you have questions about this property or would like to schedule a tour, please contact us below:

Please prove you are a human